I immediately got requested deep dives into the rooms. This is continuing from the previous post!
Main Building

Let’s go through the main building room by room.
Entrance

There’s nothing too crazy here. There is a cabinet on the right side where the electrical center/switchboard/data cables will be located in. On the ceiling height to the left there will be a window like in the corridor (see previous post if confused). The cabinet on the right will be for clothing etc. and we’ll definitely have room on the left side for more clothes hooks and place to store shoes. Here in Finland people remove their shoes when indoors. The measures of this room are approximately 2,0 x 1,7 m.
Main bedroom (with bathroom and walk-in-wardrobe)

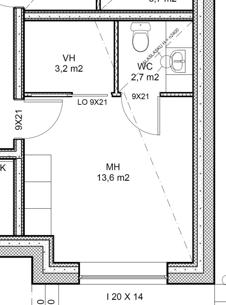
Next we have the main bedroom on the right from the entrance. Here we have some cabinets on the left wall along the shape the exterior wall makes. There’s also a walk-in-wardrobe with a sliding door. Finally there is a separate bathroom connected to this. Apparently these are then called suites? The measures of the main bedroom are approximately 3,6 m x 3,7 m (with the corner missing). There should be ample space to place a bed here although the number of doors will limit options a bit. The bathroom design is actually shown here so there will be a sink on the right side of the wall and a toilet seat directly facing the door. The walk-in-wardrobe we haven’t planned out yet but I guess it’ll be filled with cabinets of some sort or then just shelves. The walk-in-wardrobe is approximately 2 x 1,6 m and the bathroom is 1,5 x 1,6 m.
Other bedrooms

There’s very little to dive into here. Here in Finland it’s extremely rare to have bathrooms connected to bedrooms like we have with the main bedroom so these are the more common type of bedrooms. There are cabinets for clothes etc. on the wall. They are mostly mirrored with the small difference of the missing corner on the bottom one and window placement. The bathroom for these bedrooms is the one on the opposite side of the corridor. The measures of these bedrooms are approximately 3,6 m x 3,7 m.
Corridor

Basically wasted space but also sort of a necessary evil. Making a large one floor house basically forces you to have corridors as you don’t want bedrooms etc. accessible from one another. With two floors and more you’d be having some “wasted” space from the stairs as well so all things considered not so bad. There’s enough space here to decorate and furnish the walls so there could be bookshelves etc. on the walls here. At the end of the corridor is the living room and in there a large window to the backyard so opening the entrance door you’ll get a view all the way to the backyard. In many of the house manufacturer catalogues the houses have some bedrooms accessible from the living room to avoid the need for corridors which is one way of doing it. Here we have better sound insulation from the living room compared to those. Approximately 2 meters wide and 7 meters long.
Bathrooms

Hardly anything special here either. The left one is accessible from the corridor and will be primary bathroom. The bathroom on the right is accessible from the utility room and also has a space to turn around with a wheelchair since here in Finland accessibility requirements dictate that one bathroom needs to be made with that in mind. Neither of us needs this at the moment but you can never predict the future so I find these sort of things smart as altering rooms is expensive. We will most likely have some sort of movable cabinets on the right side of the bathroom. Measures are approximately 1,6 x 1,6 meters for the left one and 1,9 x 1,6 meters for the right one.
Utility room

Now there’s a lot to unpack. We’ll start with the few Finnish words we haven’t translated yet:
IV-KONE = Ilmanvaihtokone = Ventilation machine
KURASYÖPPÖ = Mud stopper / Grit trap ? Basically a washing basing on the floor for washing boots or pets…
PKK/KR = Pyykinpesukone / Kuivausrumpu = Washing machine / Tumble dryer
SK = Siivouskaappi = Cleaning cabinet
ALASLASKU = Lowered ceiling (here ceiling is lowered to 2,4 meters). I know I translated this already earlier.
So from the above you can see there is a ventilation machine on the left corner and laundry operations are on the bottom of the room. There’s a door to the corridor, shower, bathroom and outdoors so the space is initially a second corridor. We got feedback on a previous design that the utility room is too small with too many doors so this one is bigger. Hopefully it will be big enough to efficiently use.
Shower

A bath tub on the left and two showers on the right. I’m assuming the showers will be rain-fall type as those are really popular today. We’ll see when we eventually get to ordering them. Again ceiling is lowered to 2,4 meters.
Sauna

Benches on both sides and the stove/heater in the middle with a window behind it. The window will have a reflecting coating to prevent anyone from outside seeing inside it. Again ceiling is lowered to 2,4 meters. Measures 2,8 meters wide and 1,8 meters deep. There should be enough space for six people so three on each side.
Library

After the secondary bedrooms there is “work room” which is going to be a library for Elina. So a room filled with bookshelves with one window in the middle. I’m hoping that there’s enough space for like a folding guest bed but we’ll see how we end up furnishing it. Measurements 3,7 x 2,6 meters.
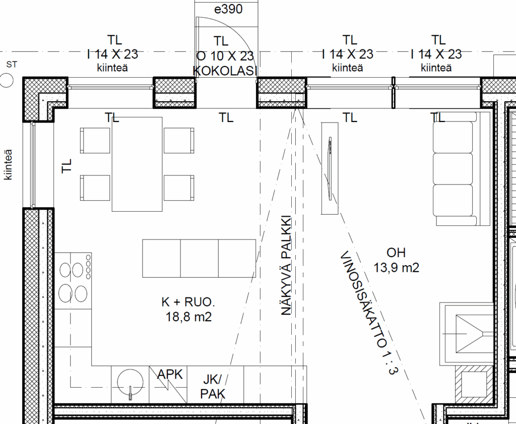
Living room / Kitchen + Dining area

They are connected so next to each other so an overview picture will help. Let’s go through the details one by one but before that some Finnish words to translate:
NÄKYVÄ PALKKI = Visible beam
VINOSISÄKATTO = Angled ceiling (followed by how much)
Living room

Living room was another sort of compromise we had as it shrunk a bit with the last changes we had to make. It starts with the corridor and to the left is the kitchen and dining area. In the living room there is a fireplace in the corner area and space for furniture. We haven’t decided on the fireplace yet but seeing that it would be our secondary/emergency heat source it would need to be quite a heavy one and we’re also debating baking oven type. The measures are approximately 2,7 meters wide and 4,6 meters deep.
Kitchen + Dining area

I think I’ve mentioned before that we had hoped to have a pantry accessible from the kitchen but that was lost during the design process. Instead we have somewhat a compact kitchen with a dining area. The whole area is approximately 4 meters wide and 4,6 meters deep. When doing the kitchen planning we aimed to keep the kitchen island without any functions (stove/dish washer/sink) to keep it movable. Considering the island is without function I think the kitchen layout is rather good but there’s ample time to fine-tune it before needing to lock the design. Some Finnish words to translate here:
APK = astianpesukone = dishwasher
JK/PAK = Jääkaappipakastin = Fridge and freezer
In addition there is a door to the backyard here so on the top right in the kitchen it is not a window but a door (with most likely a large window on it).
Side / Garage building

Continuing with the side / garage building which will actually be built first.
Garage

A two car garage with a door towards the main building and a larger doorway to a carpentry/storage room. There will be a water faucet on the bottom left corner on the exterior wall intended for getting water on the front yard. There’s also plans for two electric car charging stations – one on the inside and one on the exterior wall but those will be made as reservations first so simply putting in empty pipe where the cable can be added later if/when need arises. The roll-up doors are both 2,5 meters wide and tall and will be electric. The insides measure approximately 6,5 x 7 meters. This means that there is enough depth to store bikes etc. on the back wall next to the door.
Storage / Crafts room

Entrance to here is through the garage and from here there is a door to the technical space (with heating etc.). This is currently marked as “varasto” which means storage but I’m hoping to do some crafts here so things like carpentry etc.. This will have increased air conditioning as an option so you can paint etc. here if needed.
Technical room

Nothing much to talk about here. Entrance through the storage / crafts room. It will have the electrical box for this building, the heating pump for both of the buildings and the cold water intake for the building. So as the name suggests it’s where the technical stuff resides. There will be another water faucet on the outside wall, this time facing the backyard.
Hobby room / Office

An exit towards the main building and a separate bathroom. As mentioned earlier it’s set as a hobby room but will hopefully be my office as I currently work from home. The rules for this plot prevent us from having this building as a livable space so kitchen isn’t allowed in here. The boundary sounded to be whether or not there is an oven so for example a sink and a fridge are okay and I’ll most likely have those in the office. A microwave too maybe? A separate bathroom will be a nice addition for the office but will also be a luxury when we’ll be building the main building as the current plan is to build this side / garage building before the main one.
That’s all I guess! Any questions on any of the rooms? Let me know here or on Twitch when I’m live working on this dream of ours!