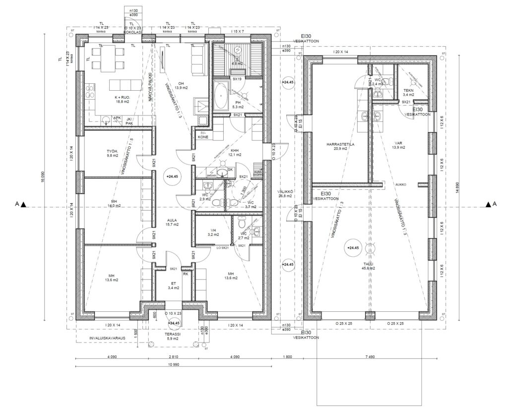
It’s finally time to reveal the plans for our future home and boy oh boy were there plenty of iterations leading to these. With no further comments here is the floor-plan:

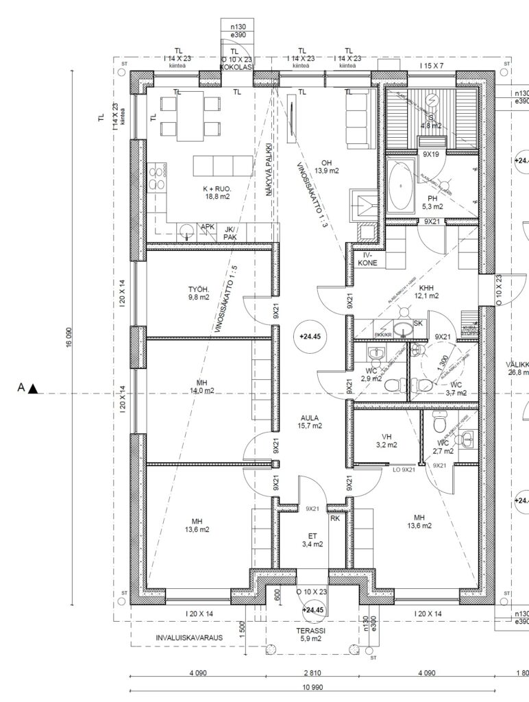
Now that picture for me at least is a bit mushy so let’s take a closer look at each of the buildings starting with the main one:

Measures are all in metric so millimeters. Windows and doors are module measures so for example 20 X 14 = 2000 x 1400 mm window. You can also see some Finnish words here and there so let me put in a short list of ones you might need:
K + RUO = Keittiö ja ruokailutila = Kitchen and dining room
OH = Olohuone = Living room
S = Sauna
PH = Pesuhuone = Shower room
KHH = Kodinhoitohuone = Utility room (laundry etc.)
VH = Vaatehuone = Walk-in wardrobe
MH = Makuuhuone = Bedroom
TH = Työhuone = Office
AULA = Hallway
ET = Eteinen = Entry
TERASSI = Terrace
INVALUISKAVARAUS = Reservation for a wheelchair ramp
VINOSISÄKATTO = Sloped ceiling (followed by how much)
ALASLASKU = Lowered ceiling (followed by ceiling height)
NÄKYVÄ PALKKI = Visible beam/bar
The main entrance is the one on the bottom of the picture here. It will be on the road side so front of the building. The second entrance is to the utility room and that is located on the corridor between this main building and the garage building as shown in the first picture. Finally there is a backdoor from the living room / dining area. The corridor splitting the whole building will have windows on the ceiling height to bring in light. Pictures to demonstrate below

Otherwise the floor plan was mostly dictated by the following limitations/wishes we had:
– Town plan only permits one floor (so no two story buildings or basement)
– Three bedrooms with one as a master bedroom with a separate bathroom
– One library room for Elina (marked as Office)
– Bathroom not inside shower room but accessible from there
I designed this floor plan myself with feedback from multiple sources. I feel especially proud of the broken gable roof since that allows for more light inside the building. The only compromise I feel like we have here is the size of the living room as that could definitely be bigger, but we currently use that room the least so we’re happy pinching from it. We were also dreaming of having a secret pantry accessible from a cabinet inside the kitchen but that was more of a “nice-to-have” than an actual compromise we had to give up.
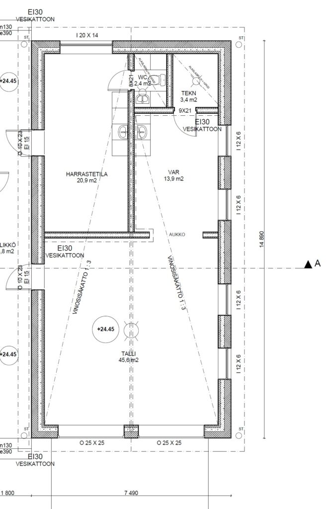
Now for the side / garage building.

This is more straight-forward.
TALLI = Garage. Here a two car garage with some depth for bikes at the end.
VAR = Varasto = storage which I’m hoping to use for carpentry etc..
TEKN = Tekninen tila = Room for heating etc.
HARRASTETILA = Hobby room which in this case will be my office as I work from home.
AUKKO = Opening

Would you guys like a more detailed explanation of the rooms? What are inside of them and what is the intended use etc.? We could do deep dives in the future if you like!
Excavation work is starting in a few days and you can follow the progress on Twitch!
Pingback: Deep dive into the room designs! – Saksorb